+34 971 698 242
Vi marknadsför er fastighet till köparna genom våra lokala fastighetsbyråer och vår lättsökta hemsida... Läs mer...
Fastigheter med ett bra läge på Mallorca är ett av de bästa investeringarna just nu. Du kan maximera din avkastning genom att hyra ut din fastighet till pålitliga hyresgäster... Läs mer...
Semesteruthyrning – det smarta sättet om man vill tjäna pengar på ditt hus på Mallorca. Genom Porta Holiday, vi är den första mäklarfirman som erbjuder det här... Läs mer...

A short distance from the natural beach of Es Trenc, a modern, private residence with a total of 69 contemporary apartments is being built. Residents will have access to spacious communal areas, including a saltwater pool, lovingly designed Mediterranean gardens and a fitness area. Energy is supplied by a sustainable heat pump, which supports both the air conditioning and heating systems and ensures a pleasant living climate all year round - cool in summer and warm in the cooler seasons.
The apartments impress with their modern architecture and high-quality furnishings. Great attention is paid to the use of high-quality materials. The basic equipment includes hot and cold air conditioning and underfloor heating in the bathrooms.
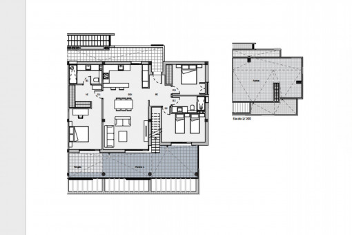
The penthouse units on the upper floor are equipped with balconies and private roof terraces. Different floor plans allow for flexible use and adapt to different living requirements. The first floor apartments have additional covered terraces
Each residential unit has its own parking space with charging facilities for electric vehicles. The energy required is generated by photovoltaic systems installed on the carports.
The following apartment types are planned:
First floor apartment with approx. 94.00 sqm living space and 2 bedrooms - from €748,000
First floor apartment with approx. 115.00 sqm living space and 3 bedrooms - from € 829,000
Second floor apartment with approx. 94.00 sqm living space and 2 bedrooms - from € 748,000
Second floor apartment with approx. 115.00 sqm living space and 3 bedrooms - from € 869,000
| Referens | Boarea | Sovrum | Golv | Pris |
|---|---|---|---|---|
| 118888 | 94 m² | 2 | 0 | € 748.000,- |
| 118888A | 115 m² | 3 | 0 | € 869.000,- |
| 118888B | 94 m² | 2 | 0 | € 748.000,- |
| 118888C | 115 m² | 3 | 0 | € 869.000,- |
Directly at the marina of Sa Rápita, on the south coast, you find the dreamlike large sandy beach of Es Trenc, one of the most beautiful beaches of the island. The calm village is mainly popular among sailors and families. Especially small holiday houses are lined up along the steep coast.
The village has a small supermarket, a bank, a bakery and a kiosk for the everyday needs. The village of Campos with large supermarkets and a weekly market is a short drive away. The best ice cream in Mallorca and several restaurants with sea views are found along the coastal road inviting cyclists, residents and tourists to stop for a bite to eat.
Sa Rápita is only an approx. 25-minute drive away from the airport.
All information is correct to the best of our knowledge. Errors and prior sale excepted. This prospectus is purely for information purposes. Only the notarized deed of sale is legally binding.
Referens:
118888C
Ort:
Sa Rapita
Boarea:
115 m²
Sovrum:
3
Badrum:
2
Balkong/Terrass:
150 m²
Hiss:
![]()
Havsutsikt:
-
Pool:
![]()
Energicertifikat:
A
Pris:
€ 869.000,-
Online- viewing:
Tack för din förfrågan!
Vi kommer att behandla din förfrågan inom kort och återkommer till dig så snart som möjligt!