+34 971 698 242
Vi marknadsför er fastighet till köparna genom våra lokala fastighetsbyråer och vår lättsökta hemsida... Läs mer...
Fastigheter med ett bra läge på Mallorca är ett av de bästa investeringarna just nu. Du kan maximera din avkastning genom att hyra ut din fastighet till pålitliga hyresgäster... Läs mer...
Semesteruthyrning – det smarta sättet om man vill tjäna pengar på ditt hus på Mallorca. Genom Porta Holiday, vi är den första mäklarfirman som erbjuder det här... Läs mer...

Unique. Right by the sea. For visionaries.
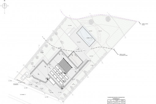
On the wonderful coast of Font de Sa Cala, where the blue of the Mediterranean merges with the tranquillity of nature, a property of rare class awaits you: a 1,268 sqm plot in an absolutely prime location - first sea line, unrestricted sea views included. Such opportunities are not only rare - they are almost priceless in the true sense of the word: quality of life at the highest level, embedded in the exclusivity of one of Mallorca's most sought-after residential areas.
Already approved: an elegant basic project for a stylish villa with pool - a foundation on which you can realize your own personal idea of luxury. Whether avant-garde architecture or timeless Mediterranean style - this is not a place to build, but a place to define a lifestyle.
It's not just rooms that are created here - it's your retreat, your stage, your home.
Secure yourself this box seat by the sea. The freedom to create something extraordinary has never been more tangible.
Contact us for more information and an exclusive viewing appointment - this prime property won't wait.
Luxury begins with the right decision.
The bay of Sa Font de sa Cala is located in the northeast of the Balearic island of Mallorca.
The settlement of Font de sa Cala is a small village with a few hotels. Above the village are some villas with fantastic views. The entertainer Harald Schmidt had a second home here for a short time. There are several golf courses in the surrounding area.
All information is correct to the best of our knowledge. Errors and prior sale excepted. This prospectus is purely for information purposes. Only the notarized deed of sale is legally binding.
Referens:
122244
Ort:
Font de sa Cala
Tomtarea:
1.268 m²
Byggbar mark:
![]()
Byggnaden får ha en yta på:
200 m²
Byggnadstillstånd:
![]()
Havsutsikt:
![]()
Pris:
€ 1.975.000,-
Online- viewing:
Tack för din förfrågan!
Vi kommer att behandla din förfrågan inom kort och återkommer till dig så snart som möjligt!