+34 971 698 242
Vi marknadsför er fastighet till köparna genom våra lokala fastighetsbyråer och vår lättsökta hemsida... Läs mer...
Fastigheter med ett bra läge på Mallorca är ett av de bästa investeringarna just nu. Du kan maximera din avkastning genom att hyra ut din fastighet till pålitliga hyresgäster... Läs mer...
Semesteruthyrning – det smarta sättet om man vill tjäna pengar på ditt hus på Mallorca. Genom Porta Holiday, vi är den första mäklarfirman som erbjuder det här... Läs mer...

This luxurious, newly-built property is presently under construction, and stands on a plot of approx. 15,000 sqm in one of Mallorca's most desirable locations. It combines the latest in ultra-modern technology and high-quality materials, creating an harmonious and balanced unity.
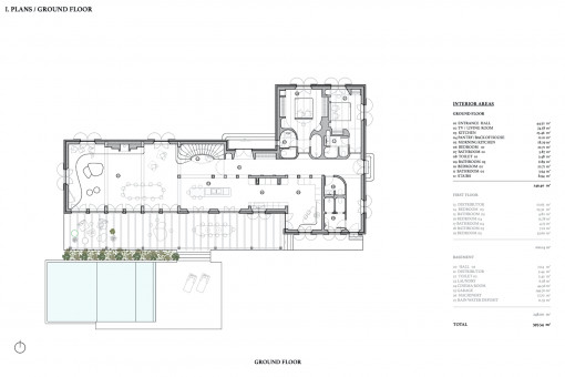
An area of 597 sqm is spread over 2 levels plus a cellar of 248 sqm. On the ground floor is the living room, kitchen, dining room, 2 bedrooms with en-suite bathrooms, a guest WC and a hammam. It would also be possible to add a further living room and an office if required by the new owners. Almost all rooms on this level have direct access to a large external terrace with pool.
Housed on the first floor of this enchanting residence are 3 spacious bedrooms, each with its own luxurious bathroom and walk-in wardrobe.
The lowest level consists of a large garage with space for 4 vehicles, the technology room, a laundry room, a storage room, a separate WC, and an exclusive home-cinema room.
Further features include mains electricity, underfloor heating, air heat pump, centralised air conditioning and central heating.
Santa Maria is home of many well known Majorcan vintages. The scenery is commanded by the many fields of almond trees, carob trees and vine yards. It is picturesquely situated in front of the Tramuntana. Its church is visible from far away. Santa Maria is suited for starting point to many trips into the mountains.
All information is correct to the best of our knowledge. Errors and prior sale excepted. This prospectus is purely for information purposes. Only the notarized deed of sale is legally binding.
Referens:
121319
Ort:
Santa Maria del Cami
Boarea:
597 m²
Tomtarea:
15.886 m²
Sovrum:
5
Badrum:
5
Pool:
![]()
Havsutsikt:
-
Energicertifikat:
pågående
Pris:
€ 8.750.000,-
Online- viewing:
Tack för din förfrågan!
Vi kommer att behandla din förfrågan inom kort och återkommer till dig så snart som möjligt!
Santa Maria del Cami: Mediterranean dream home with pool and garage near Santa Maria
Santa Maria del Cami: Outstanding country house in an absolutely beautiful location in Santa Maria
Santa Maria del Cami: Exclusive finca project with pool and underground parking near Santa Maria